FIND A RENT
賃貸を探す
〈賃貸〉橦木町レジデンス THE FUDE306号室【募集中】
賃料
472,000円(インターネット利用料含む)
管理費・共益費等
-
その他費用
ー
敷金
賃料の1ヶ月分
礼金
賃料の2ヶ月分
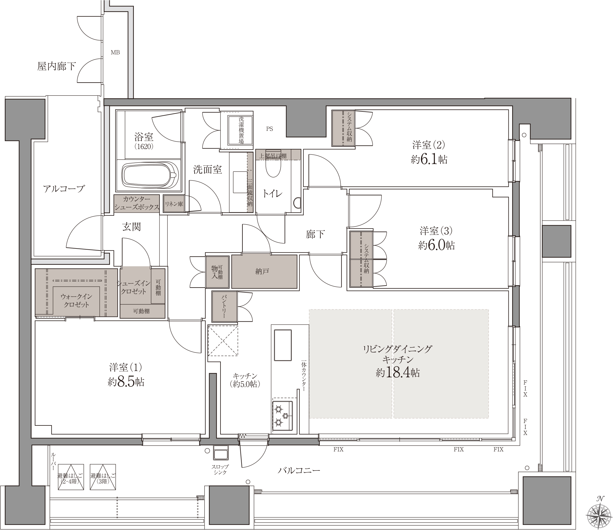
間取り
3LDK
専有面積
96.35㎡
階建/階
地上8階地下1階建て/3階
築年月
2025年01月 (築1年1ヶ月)
方位
南
栄1.3㎞圏、都心邸宅地「名古屋市東区橦木町」。
名鉄都市開発株式会社としての新たな邸宅型マンション「橦木町レジデンス THE FUDE」。
3,200㎡超の広大な敷地には、奥行きのある「屋根付車寄せ」やゲート付きの「地下屋内平面駐車場」、「来客用駐車場3台」を付設するなど他の邸宅型マンションと一線を画す仕様となっております。
【共用部】コンシェルジュサービス付き、ラウンジ付設、カーペット貼りの屋内廊下、24時間ゴミステーション。
【専有部】生ゴミディスポーザー、天井カセットエアコン付き(LD・主寝室)、食器洗い洗浄機、床暖房(LD)。
【立 地】フランテロゼ白壁徒歩11分、文化のみち二葉館徒歩3分、山吹小学校徒歩7分、東海中学校徒歩13分。
CONTACT US
この物件のご見学希望・お問い合わせ
MAP
現地案内図
カーナビ住所/名古屋市東区橦木町三丁目59番地
OUTLINE
物件概要
| 所在地 | 名古屋市東区橦木町三丁目59番地 |
|---|---|
| 交通 | 地下鉄桜通線「高岳」駅徒歩12分 |
| 賃料 | 472,000円(インターネット利用料含む) |
| 管理費・共益費等 | - |
| その他費用 | ー |
| 敷金 | 賃料の1ヶ月分 |
| 礼金 | 賃料の2ヶ月分 |
| 間取り | 3LDK |
| 専有面積 | 96.35㎡ |
| 方位 | 南 |
| 駐車場 | 19,800円(月額) |
| 構造/階建 | 鉄筋コンクリート造 地上8階地下1階建て |
| 建築年月 | 令和07年1月築 |
| 現況 | 空家 |
| 入居可能時期 | 2026年4月1日以降 |
| 総戸数 | 59 |
| 契約期間 | 2年 |
| 更新料 | 1か月/2年 |
| 保証会社 | 指定の保証委託契約会社要 |
| 住宅保険 | 指定の借家人賠償特約付き火災保険の加入が必要です。 |
| 備考 |
※写真や間取り図、仕様など、
物件概要と現況が異なる場合は現況を優先させていただきます。
※写真の家具や調度品などは価格に含まれません。
※設備、施設は別途契約や利用料金がかかる場合がございます。
※掲載している物件が万が一成約の際はご了承ください。

















